Save
Ask
Tour
Hide
$2,067,500
26 Days On Site
80 Hwy 212Covington, GA 30014
For Sale|Unimproved Land|Active
0
Beds
0
Total Baths
Subdivision:
none
County:
Newton
Call Now: 404.439.9316
Is this the listing for you? We can help make it yours.
404.439.9316



Save
Ask
Tour
Hide
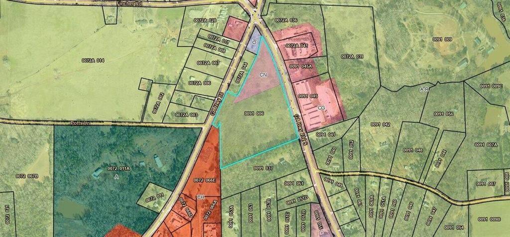
Highly visible Corner lot with 14.45 acres in Covington at the southern corner of Highway 212 & 36. 3.96 acres zoned CN (south side) 10.49 acres zoned AR (north side) Water, Electric, No Sewer (currently)
Save
Ask
Tour
Hide
Listing Snapshot
Price
$2,067,500
Days On Site
26 Days
Bedrooms
N/A
Inside Area (SqFt)
N/A
Total Baths
N/A
Full Baths
N/A
Partial Baths
N/A
Lot Size
14.45 Acres
Year Built
N/A
MLS® Number
7653562
Status
Active
Property Tax
$620
HOA/Condo/Coop Fees
N/A
Sq Ft Source
N/A
Friends & Family
Recent Activity
4 weeks ago | Listing updated with changes from the MLS® | |
4 weeks ago | Listing first seen on site |
General Features
Acres
14.45
Additional Property Use
Other
Property Sub Type
Unimproved Land
Utilities
Cable AvailableElectricity AvailablePhone AvailableWater Available
Zoning
AR CN
Save
Ask
Tour
Hide
Exterior Features
Fencing
None
Lot Features
WoodedCorner LotLevelOpen Lot
Other Structures
None
Road Frontage
County Road
View
Other
Waterfront Features
None
Waterview
Other
Community Features
Community Features
None
Horse Property
None
Roads
AsphaltPaved
Schools
School District
Unknown
Elementary School
Heard-Mixon
Middle School
Indian Creek
High School
Alcovy
Listing Provided Courtesy Of: Core Properties of Berkshire Hathaway HomeServices Georgia Properties [email protected]
Listings identified with the FMLS IDX logo come from FMLS and are held by brokerage firms other than the owner of this website and the listing brokerage is identified in any listing details. Information is deemed reliable but is not guaranteed. If you believe any FMLS listing contains material that infringes your copyrighted work, please click here to review our DMCA policy and learn how to submit a takedown request.
© 2017-2025 First Multiple Listing Service, Inc.
Listings identified with the FMLS IDX logo come from FMLS and are held by brokerage firms other than the owner of this website and the listing brokerage is identified in any listing details. Information is deemed reliable but is not guaranteed. If you believe any FMLS listing contains material that infringes your copyrighted work, please click here to review our DMCA policy and learn how to submit a takedown request.

© 2017-2025 First Multiple Listing Service, Inc.
Neighborhood & Commute
Source: Walkscore
Disclosure: Community information and market data powered by Constellation Data Labs. Information is deemed reliable but not guaranteed.
Save
Ask
Tour
Hide
Did you know? You can invite friends and family to your search. They can join your search, rate and discuss listings with you.