2701 Conns CreekBall Ground, GA 30107




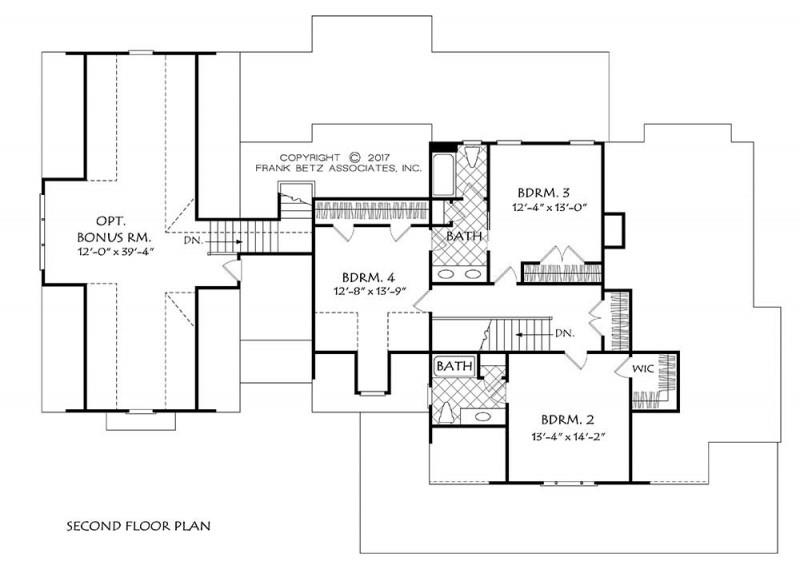
Welcome to The Gulfport — a thoughtfully designed Frank Betz & Associates home plan, to be constructed by Elevation Building Co. on Lot 48 in the extraordinary gated community of Sanctuaire Farms in Ball Ground, Georgia. If you dreamed of a homestead this is the community of your dreams. We walk you through the process. Pick a lot, do master planning session with developer, chose a builder, construct the Farmstead you visioned. Agriculture/activities on your own acreage, or join us down on The Grange. Elevation Building Co. has yrs of experience and can create your full vision, work with them to add Pool, Pool House, Barn, Chicken Coop and more to build out your Farmstead. Situated on 5 private acres, this approx. 3,000 sq ft home features 4 bedrooms and 3.5 bathrooms, offering main-level living at its finest. The home includes a spacious primary suite on the main, an open-concept layout, and expansive covered porches perfect for enjoying the peaceful, pastoral surroundings. • Main Level: 2,000 sq ft • Upper Level: 1,000 sq ft • Bonus Room (Optional): 588 sq ft Just minutes from downtown Ball Ground, this home is part of a 460-acre gated homestead community built for those who dream of living with purpose, privacy, and connection to the land. About Sanctuaire Farms: Sanctuaire Farms is a visionary response to the growing desire for a more intentional lifestyle. Built on the foundations of Faith, Family, and Community, the neighborhood features 54 estate-sized lots (5–20+ acres), a curated builder group, and a fully integrated farm-based amenity. We specialize in taking your homestead dreams and making them reality. Pick a lot, go through master planning with the developer, select your builder, and construct the farm of your dreams. Whether you’re envisioning a family compound, a small-scale working farm, or a peaceful retreat, Sanctuaire Farms is designed to guide and support your vision. The Grange – A 40-Acre Private Amenity Farm: At the heart of Sanctuaire Farms is The Grange, a working farm and educational co-op featuring: • Gathering Barn & Veggie Barn • Farmer’s Market & Artist Pavilions • Greenhouse, Dairy Barn & Workshop • Prayer Garden & Event Lawn • Homeschool programs, farm-to-table dinners, CSA subscriptions, and seasonal community events Residents enjoy the opportunity to garden, raise animals, and live more sustainably—all while surrounded by a like-minded community. This is more than a home — it’s a lifestyle rooted in land, legacy, and purpose. Come experience Sanctuaire Farms.
2 months ago | Listing first seen on site | |
2 months ago | Listing updated with changes from the MLS® |
Listings identified with the FMLS IDX logo come from FMLS and are held by brokerage firms other than the owner of this website and the listing brokerage is identified in any listing details. Information is deemed reliable but is not guaranteed. If you believe any FMLS listing contains material that infringes your copyrighted work, please click here to review our DMCA policy and learn how to submit a takedown request.

© 2017-2025 First Multiple Listing Service, Inc.
Did you know? You can invite friends and family to your search. They can join your search, rate and discuss listings with you.